Projets

  • Vestiaires Stade Delaune
  • Vestiaires Stade Delaune
  • Vestiaires Stade Delaune
Sport

Vestiaires Stade Delaune

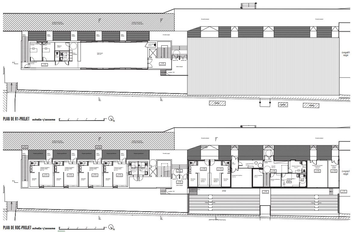
Dans le cadre de la rénovation des vestiaires de stade Delaune imposée par la Fédération française de Football pour que notre club (l'ESVT) puisse évoluer à son niveau, la ville a décidé d'investir dans un nouveau lieu citoyen et mutualisé avec le Triathlon Grand Villerupt 54 et le collège. Ce nouvel endroit sera à la fois capable de recevoir les sportifs dans des conditions optimales (vestiaire, sanitaire, sécurité), d'offrir des capacités de rangement et stockage (salles prévues à cet effet) et surtout d'accueillir dans un espace lumineux et convivial le public venant  assister à des évènements sportifs, des réunions ou autres rassemblements festifs.

Ci-dessus, cliquez sur l'image pour découvrir les premières esquisses de l'avant-projet de la rénovation des vestiaires et du Club House du stade Delaune .